RAUTENBACH
Gesellschaft von Architekten mbH
PROJEKTE
BÜRO
KONTAKT
BESTAND
2019-2023 Kalle Neukölln
2017-2019 Tegel Quartier
2015-2018 Schultheiss Quartier
2015-2017 Koblenzer Straße 2
2013-2014 Leipziger Straße 125
2011-2013 Haus Cumberland
2010-2012 Am Urban
2006-2009 Berlin Campus
2005-2006 Haus Holländer
2002-2004 Kollwitzstraße 57
NEUBAU
2017-2020 Wilmersdorfer Str. 59
2016-2017 HKA
2013-2014 Rathenau Karree
2009-2010 Koenigsallee 7a
2007-2008 Kanalstraße 21
2002-2003 Haus Lückhoffstraße
2000-2001 Haus Kaiserdamm
1998-2000 Haus Leibniz
1998-1999 Haus Roonstraße
AUSBAU
2007 Idee KaDeWe
2005+2009 Klosterstraße
2003-2005 Haus Witzleben
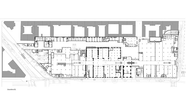
Schultheiss Quartier
Stromstraße 11 - 17, Berlin-Moabit
Denkmalgerechte Instandsetzung und Umbau einer ehemaligen Brauerei zu einem Einkaufszentrum und Büroflächen
Bauphase: 2015 - 2018
Bauherr: HGHI Schultheiss GmbH & Co. KG
Leistungsphasen: 5 - 7 der denkmalgeschützten Gebäude
BGF: 72.400 m²
Verkaufsfläche: ca. 30.000 m²
Bürofläche: ca. 15.000 m²
> Impressum